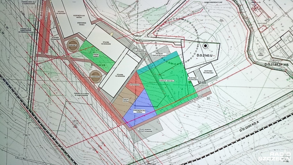
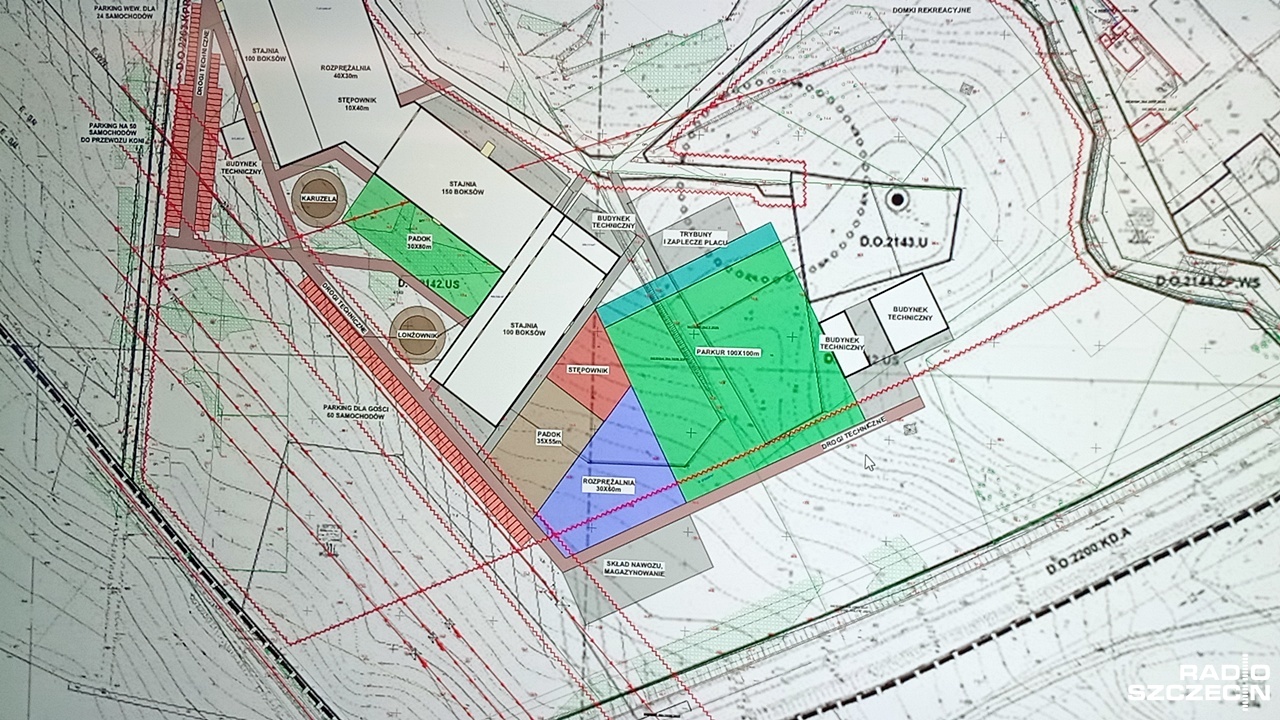
Ponad 17 milionów złotych chce przeznaczyć szczecińska spółka Equinity na stworzenie nowego ośrodka jeździeckiego. Powstać miałby w Kijewie w okolicach autostrady A6.
Nowy ośrodek stworzony byłby przede wszystkim pod kątem rywalizacji sportowej - informuje Kornel Andrzejewski, członek zarządu spółki.
- Mówimy o skokach przez przeszkody, ewentualnie w jakiejś części również będziemy organizować zawody ujeżdżeniowe. Mamy pełne wsparcie prezesa Polskiego Związku Jeździeckiego. Możliwe, że będziemy mieć nawet woltyżerkę, żeby rozwijać te sporty jeździeckie - mówi Andrzejewski.
Zdaniem członka zarządu spółki, pierwsze szczecińskie zawody w skokach przez przeszkody mogłyby odbyć się już w przyszłym roku.
- Mamy ambitne plany, żeby pierwsze zawody rozpoczęły się nawet w przyszłym roku. Wiosną chcielibyśmy uzyskać wszelkie niezbędne pozwolenia i rozpocząć budowę, żeby w części zewnętrznej móc organizować zawody już w przyszłym roku - mówi Andrzejewski.
Przyszły inwestor planuje utworzenie na terenie nowego ośrodka także akademii jeździeckiej dla najmłodszych adeptów skoków przez przeszkody.
- Mówimy o skokach przez przeszkody, ewentualnie w jakiejś części również będziemy organizować zawody ujeżdżeniowe. Mamy pełne wsparcie prezesa Polskiego Związku Jeździeckiego. Możliwe, że będziemy mieć nawet woltyżerkę, żeby rozwijać te sporty jeździeckie - mówi Andrzejewski.
Zdaniem członka zarządu spółki, pierwsze szczecińskie zawody w skokach przez przeszkody mogłyby odbyć się już w przyszłym roku.
- Mamy ambitne plany, żeby pierwsze zawody rozpoczęły się nawet w przyszłym roku. Wiosną chcielibyśmy uzyskać wszelkie niezbędne pozwolenia i rozpocząć budowę, żeby w części zewnętrznej móc organizować zawody już w przyszłym roku - mówi Andrzejewski.
Przyszły inwestor planuje utworzenie na terenie nowego ośrodka także akademii jeździeckiej dla najmłodszych adeptów skoków przez przeszkody.
Edycja tekstu: Michał Król

Radio Szczecin
